Guide Price £345,000 Sold STC
  • Large 5 Bedroom Detached House.
  • Could be suitable for a family or extended family.
  • Impressive Kitchen/Diner, Conservatory.
  • Spacious Lounge with feature fireplace.
  • Ample Parking and Gardens.
  • Located on a popular development.

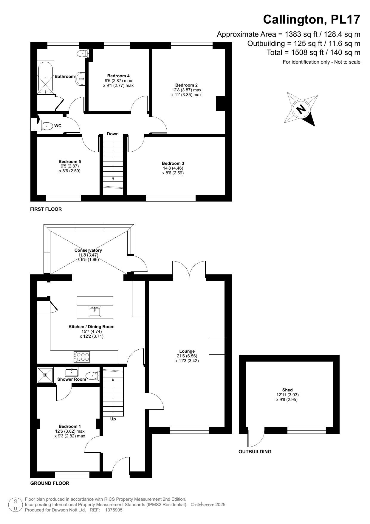
A brick paved pathway leads down to the front Entrance door, giving access to the Hallway. Where stairs rise to the first floor and there is a useful under stairs cupboard. From here access is also gained to the downstairs accommodation,The principle reception room being the large Lounge, features a cast iron wood burner set on a slate hearth, with stone backing and slate mantle. This is a double aspect room and includes French doors opening to the rear garden. To the left hand side of the hallway there is a Double Bedroom, which was originally the garage and faces to the front. A door opens to the En suite which comprises a shower cubicle with enclosing door and waterfall shower head, vanity unit, low level WC and heated towel rail. From the hallway a door opens into impressive Kitchen which is fitted with a range of high gloss wall and base units with square edged work surfaces and matching splash backs. An Electric Range Master cooking range with 6 hob plates and a double oven beneath, with grill and warming oven. Separate matching island with base units and a sink unit with pull out tap. Under unit space and plumbing for dishwasher, washing machine and space for tumble dryer. American style fridge/freezer, Breakfast bar area, Welsh style modern dresser. A square arch way to the Conservatory, with opening and encased windows which overlook the garden and provide access to the patio. On the first floor the Landing gives access through to the upstairs accommodation. There are 4 further double bedrooms which can be adapted for individual preferences. The family Bathroom faces to the rear and comprises of a low level WC, wash hand basin, shaped bath with a double headed waterfall shower over and shower screen. There is also a separate Cloakroom which includes a low level WC and shaped wash hand basin.



Outside:-
To the front there is a paved driveway and pathway which lead down to the front entrance and the Storm Porch with outside lighting. The front garden includes a lawn, ample parking, a pebble finished section and a pathway which leads around to the rear. To the rear there is a patio area, raised decking, lawn and a large storage shed. The garden is enclosed.
Services:- Mains Electric, Gas, Water and drainage.
Council Tax:- According to Cornwall Council the Tax Band for the property is D.



Council Tax
Cornwall Council, Band D

Notice
Please note we have not tested any apparatus, fixtures, fittings, or services. Interested parties must undertake their own investigation into the working order of these items. All measurements are approximate and photographs provided for guidance only.


/// remarking.engraving.butternut is the what3words address for the best entrance. what3words has given every 3 metre square in the world a unique combination of 3 random words.

Floor Plan
EER Chart

The Energy-Efficiency Rating is a measure of a home's overall efficiency. The higher the rating, the more energy-efficient the home is, and the lower the fuel bills are likely to be.

Utility Supply Type
Electric Mains Supply
Gas Mains Supply
Water Mains Supply
Sewerage Mains Supply
Broadband Unknown
Telephone Landline

Other Items Description
Heating Gas Central Heating
Garden/Outside Space Yes
Parking Yes
Garage No

Broadband Coverage Highest Available Download Speed Highest Available Upload Speed
Standard 16 Mbps 1 Mbps
Superfast 80 Mbps 20 Mbps
Ultrafast 1000 Mbps 1000 Mbps

Mobile Coverage Indoor Voice Indoor Data Outdoor Voice Outdoor Data
EE Likely Likely Enhanced Enhanced
Three Likely Likely Enhanced Enhanced
O2 Enhanced Likely Enhanced Enhanced
Vodafone Likely Likely Enhanced Enhanced

Broadband and Mobile coverage information supplied by Ofcom.


marker icon