Guide Price £285,000 Available
  • Link Detached House close to the Town centre
  • Large Lounge/Dining room
  • In need of some modernisation
  • 3 Double Bedrooms
  • Garage, Parking and Gardens
  • NO CHAIN

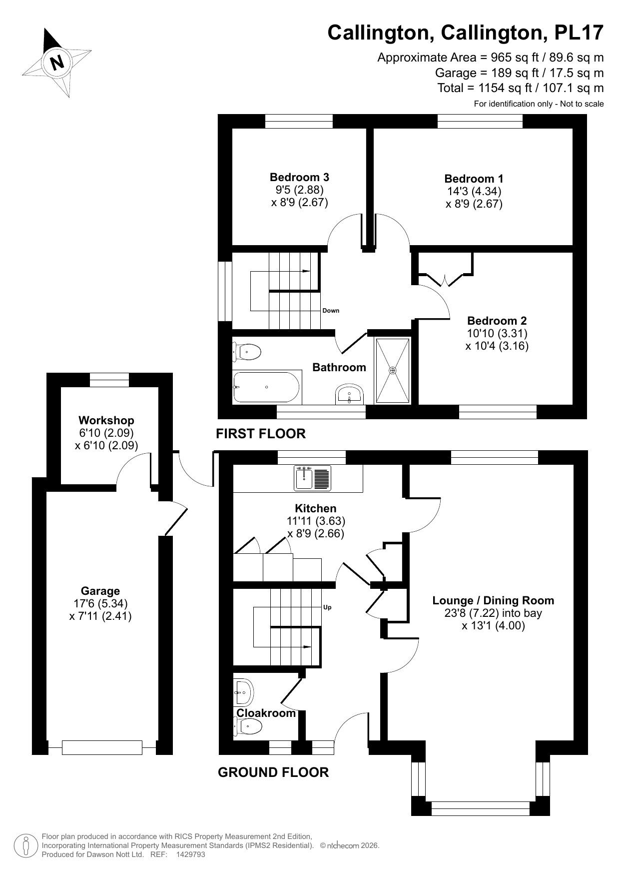
The main entrance door with matching side panel opens into the Hallway where there is an under stairs recess with storage cupboard. Stairs rise to the first floor and there is a cloaks hanging cupboard. The downstairs Cloakroom comprises a low level WC, wash hand basin with decorative curtain below, tiled splash back, part tiling to the walls and window to the front. To the right hand side of the hallway a door gives access through to the good sized, light and airy Lounge/Dining Room. This room benefits from full height windows to the front elevation, overlooking the garden. It has a gas fire and ample room for reception and dining room furniture. furniture There are also uPVC double glazed windows overlooking the rear garden. The Kitchen is fitted with base units and a wall unit, has roll top work surfaces and drawer space. Space for a cooker and under unit space and plumbing for washing machine or dishwasher. There is a larder cupboard with shelving and a further cupboard housing the central heating and hot water boiler. Wall mounted heater and a side door gives access to a covered pathway, leading to the back garden. On the first floor the Landing has access through to the bedrooms and bathroom and there is loft access. Bedroom One is a double bedroom and is facing to the rear overlooking the garden with views across to Kit Hill. Bedroom Two is a double bedroom which has windows to the front elevation and recessed area for bedroom furniture. There is also a wardrobe with hanging rail and shelving. Bedroom Three is also a double bedroom facing to the rear, overlooking the attractive garden and has a wardrobe. The Bathroom comprises low level WC, vanity unit incorporating a shaped wash hand basin, bath and separate shower cubicle housing the bar shower with tray and enclosing doors. There is also a uPVC frosted double glazed window to the front elevation.


Outside:
The property is approached via a pathway giving access to the Storm Porch. The front garden is laid to lawn, with a section finished in gravel. The rear garden is enclosed with walling offering privacy. There is a timber built Summer house, trees, shrubs and flower beds. There is a pebble finished section ideal for use as a patio and a raised lawn edged with flower borders. There is a Garage with an up and over door and a side door. Rear attached Workshop with window. There is also additional parking for 1 -2 vehicles.

Services: Mains Electric, Gas, Water and drainage.

Council Tax: According to Cornwall Council the Council Tax Band is C.

The property has Gas central heating and uPVC double glazing.



Council Tax
Cornwall Council, Band C

Notice
Please note we have not tested any apparatus, fixtures, fittings, or services. Interested parties must undertake their own investigation into the working order of these items. All measurements are approximate and photographs provided for guidance only.

Floor Plan
EER Chart

The Energy-Efficiency Rating is a measure of a home's overall efficiency. The higher the rating, the more energy-efficient the home is, and the lower the fuel bills are likely to be.

Utility Supply Type
Electric Mains Supply
Gas Mains Supply
Water Mains Supply
Sewerage Mains Supply
Broadband None
Telephone None

Other Items Description
Heating Gas Central Heating
Garden/Outside Space Yes
Parking Yes
Garage Yes

Broadband Coverage Highest Available Download Speed Highest Available Upload Speed
Standard 23 Mbps 1 Mbps
Superfast Not Available Not Available
Ultrafast 1000 Mbps 1000 Mbps

Mobile Coverage Indoor Voice Indoor Data Outdoor Voice Outdoor Data
EE Likely Likely Enhanced Enhanced
Three Enhanced Enhanced Enhanced Enhanced
O2 Enhanced Enhanced Enhanced Enhanced
Vodafone Likely Likely Enhanced Enhanced

Broadband and Mobile coverage information supplied by Ofcom.


marker icon