Guide Price £265,000 Available
  • Charming Character Cottage in tucked away location
  • Lounge with wood burner and Separate Dining room
  • Impressive Kitchen and Utility room
  • 3 Bedrooms
  • Large Shower room
  • Rear Courtyard Garden and Parking for 2/3 vehicles

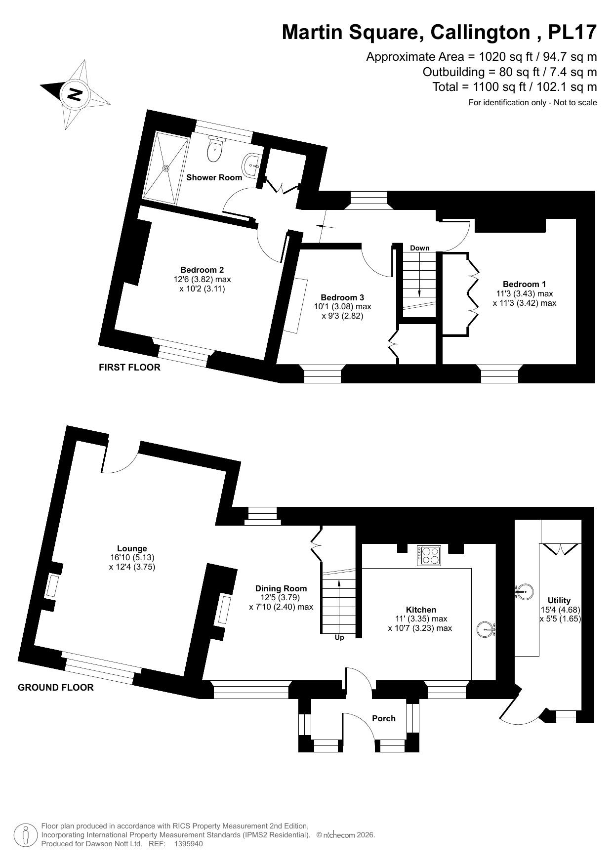
You first enter this charming property through the entrance door which opens to the useful Porch providing an ideal space for coats and shoes. A further door then opens to the Dining room which faces to the front and has stairs rising to the first floor. There is a ornate cast iron range, period style radiator, wooden floor boards and under stairs storage cupboards. This room is double aspect having windows to the front and rear. Beamed ceilings, spotlighting and an opening through to the Lounge. The main reception room being the Lounge has the main feature as the fireplace with the wood burner and a wooden lintel. Beamed ceilings, upright radiator, window to the front elevation with deep wooden sill. Window to the rear and door giving access to the garden. The impressive kitchen includes a range of wall and base units in contrasting colours. Recess housing the Five ring gas hob with wooden lintel over and mosaic tiles. Double oven/grill, space for oversized fridge/freezer, Belfast sink. The kitchen faces to the front and has a deep wooden sill.

On the first floor there is a dividing landing which gives access to the bedrooms and bathroom. Small period style radiator, window with slate sill facing to the rear. Storage cupboard housing the heating and hot water boiler. Bedroom one is a double bedroom facing to the front with a deep wooden sill, fitted wardrobes and an upright radiator. Bedroom two, is again facing to the front elevation and enjoys views over surrounding and far reaching countryside. Bedroom three can be adapted to individual choices such as a study, has window to the front, deep tiled sill, period style radiator, wardrobes and loft access. The Shower room comprises of a low level WC, a vanity unit with shaped wash hand basin, large walk in shower with double shower heads, heated towel rail and faces to the rear.

The property has gas central heating and uPVC double glazing.


.
An external door gives access to the Laundry room/utility, with cabinets and plumbing for washing machine, space for tumble dryer and further white goods, worktop surfaces. Tall cupboards with shelving, coloured modern brick tiling, sink unit with tap over, mosaic tiling to the floor. Window to the front and the meter box for the gas.

Outside:-
Just opposite the property there is a gated driveway and parking facilities for two to three vehicles which is a rarity so close to the town centre.

To the front of the property there is a patio paved area for potted plants etc and an outside tap.

At the back there is a garden with a raised flower beds and pergola providing an area for alfresco dining and entertaining. There is a gateway which gives access to the rear of the other cottages.

Main Services:- Gas, Electric, Water and Drainage

Council Band:- C




Council Tax
Cornwall Council, Band C

Notice
Please note we have not tested any apparatus, fixtures, fittings, or services. Interested parties must undertake their own investigation into the working order of these items. All measurements are approximate and photographs provided for guidance only.

Floor Plan
EER Chart

The Energy-Efficiency Rating is a measure of a home's overall efficiency. The higher the rating, the more energy-efficient the home is, and the lower the fuel bills are likely to be.

Utility Supply Type
Electric Mains Supply
Gas Mains Supply
Water Mains Supply
Sewerage Mains Supply
Broadband None
Telephone Landline

Other Items Description
Heating Gas Central Heating
Garden/Outside Space Yes
Parking Yes
Garage No

Broadband Coverage Highest Available Download Speed Highest Available Upload Speed
Standard 20 Mbps 1 Mbps
Superfast 80 Mbps 20 Mbps
Ultrafast Not Available Not Available

Mobile Coverage Indoor Voice Indoor Data Outdoor Voice Outdoor Data
EE Likely Likely Enhanced Enhanced
Three Likely Likely Enhanced Enhanced
O2 Enhanced Likely Enhanced Enhanced
Vodafone Likely Likely Enhanced Enhanced

Broadband and Mobile coverage information supplied by Ofcom.


marker icon